Kết cấu nhà xưởng công nghiệp là yếu tố cốt lõi ảnh hưởng trực tiếp đến độ bền, khả năng chịu tải và hiệu suất vận hành của nhà xưởng. Việc lựa chọn đúng loại kết cấu không chỉ giúp tối ưu chi phí xây dựng mà còn đảm bảo hoạt động sản xuất ổn định, an toàn. Trong bài viết này, KTG Industrial sẽ cùng bạn khám phá các yêu cầu kỹ thuật và loại kết cấu phổ biến theo quy chuẩn xây dựng Việt Nam.
Khái niệm kết cấu nhà xưởng công nghiệp
Kết cấu nhà xưởng công nghiệp là hệ thống chịu lực chính giúp công trình ổn định, bền vững và đáp ứng được các yêu cầu kỹ thuật trong quá trình sản xuất. Hệ kết cấu này bao gồm các bộ phận như: Móng, cột, dầm, khung kèo, mái, sàn,… Mỗi thành phần đều giữ vai trò quan trọng trong việc phân phối tải trọng và chống lại các tác động từ môi trường.
Theo Tiêu chuẩn quốc gia TCVN 5575:2012, tiêu chuẩn thiết kế, kết cấu công trình phải được tính toán dựa trên khả năng chịu lực, độ ổn định, độ bền và khả năng sử dụng theo thời gian thiết kế. Ngoài ra, với các nhà xưởng công nghiệp sử dụng khung thép, kết cấu cần đảm bảo khả năng lắp ghép nhanh, linh hoạt trong mở rộng và phù hợp với đặc thù sản xuất của từng ngành nghề.
Kết cấu nhà xưởng công nghiệp gồm những gì?
Kết cấu nhà xưởng công nghiệp gồm các bộ phận như: Móng, cột, dầm, khung kèo, mái, sàn,… đóng vai trò quan trọng trong việc đảm bảo sự ổn định, bền vững và an toàn cho công trình trong suốt quá trình sử dụng. Khi xây dựng nhà xưởng, việc tuân thủ các quy định pháp luật và quy chuẩn kỹ thuật là bắt buộc nhằm đảm bảo chất lượng công trình và an toàn cho người lao động.
Theo Nghị định 06/2021/NĐ-CP và Luật Xây dựng 2014 (sửa đổi 2020), công trình công nghiệp phải được thiết kế, thẩm tra và thi công đúng theo các tiêu chuẩn kỹ thuật hiện hành. Một số quy chuẩn quan trọng cần áp dụng bao gồm:
- TCVN 5575:2012 (Kết cấu thép – Tiêu chuẩn thiết kế)
- TCVN 2737:1995 (Tải trọng và tác động)
- QCVN 06:2022/BXD (An toàn cháy)
- QCVN 01:2021/BXD (Quy hoạch xây dựng)
- QCVN 03:2023/BXD (Phân loại, phân cấp công trình xây dựng)
Cột thép, cột dầm
Cột và dầm là những bộ phận chịu lực chính trong kết cấu nhà xưởng công nghiệp và có vai trò truyền tải trọng từ mái và sàn xuống móng. Trong nhà xưởng hiện đại, cột thép và dầm thép thường được ưa chuộng nhờ khả năng chịu lực tốt, dễ gia công và lắp đặt nhanh chóng.
Kết cấu móng nhà xưởng công nghiệp
Kết cấu móng nhà xưởng công nghiệp thường được thi công bằng bê tông cốt thép nhằm đảm bảo độ bền vững và khả năng chịu tải lâu dài. Đây là bộ phận nằm dưới cùng, đóng vai trò truyền tải trọng từ công trình xuống lớp đất nền một cách đều và an toàn. Tùy theo đặc điểm địa chất khu vực, tải trọng sử dụng và quy mô nhà xưởng, các loại móng phổ biến như móng đơn, móng băng, móng bè hoặc móng cọc sẽ được lựa chọn và thiết kế phù hợp.
Kết cấu móng nhà xưởng phải được thiết kế để đảm bảo sự ổn định và bền vững của công trình. Độ cao mặt nền móng cần chênh lệch tương ứng theo từng loại cột như sau:
- Cột thép: chênh lệch 0,2m
- Cột bê tông cốt thép: chênh lệch 0,15m
- Cột khung chèn tường: chênh lệch 0,5m
Móng cột cần thiết kế khe co giãn để giảm tác động của biến dạng. Bên cạnh đó, lớp bảo vệ vật liệu chịu nhiệt, chống ăn mòn cũng được sử dụng để bảo vệ móng khỏi các yếu tố môi trường.
Dầm
Dầm là bộ phận kết cấu ngang trong nhà xưởng công nghiệp, có nhiệm vụ tiếp nhận và truyền tải trọng từ mái, sàn hoặc tường xuống cột. Tùy thuộc vào kết cấu tổng thể và tải trọng sử dụng, dầm có thể được chế tạo từ thép hình, thép tổ hợp hoặc bê tông cốt thép.

Dầm được lắp đặt tạo thành bộ khung chịu lực cho toàn bộ công trình
Mái che và vật liệu cách nhiệt
Mái nhà xưởng không chỉ là lớp bảo vệ trên cùng của công trình mà còn đóng vai trò quan trọng trong việc chống nóng, chống thấm và điều hòa nhiệt độ bên trong. Mái thường được lợp bằng tôn sóng, tôn cách nhiệt, panel PU hoặc các vật liệu nhẹ có lớp cách nhiệt tích hợp.
Khi thiết kế mái nhà xưởng, tiêu chuẩn độ dốc của mái cần phải phù hợp với từng loại vật liệu sử dụng, cụ thể như sau:
| Loại vật liệu lợp mái | Độ dốc tiêu chuẩn (%) |
| Tấm lợp amiăng xi măng | 30% – 40% |
| Tôn múi (tôn sóng) | 15% – 20% |
| Ngói | 50% – 60% |
| Bê tông cốt thép | 5% – 8% |
Ngoài ra, đối với mái bê tông cốt thép có độ dốc dưới 8%, yêu cầu bắt buộc phải có khe nhiệt ở lớp bê tông chống thấm, với khoảng cách giữa các khe nhiệt lớn hơn 24m theo chiều dọc của nhà.
Trong trường hợp thiết kế mái một nhịp với chiều rộng không quá 24m và chiều cao cột dưới 4,8m, nước mưa có thể chảy tự do mà không cần ống dẫn. Tuy nhiên, nếu chiều cao cột vượt quá 5,4m, mái phải được thiết kế thêm ống dẫn nước mưa xuống đất.
Đối với thiết kế có cửa mái hoặc giật cấp có độ lệch lớn hơn hoặc bằng 2,4m, phải có máng hứng và ống thoát nước mưa. Trong trường hợp mái hỗn hợp vừa chiếu sáng vừa thông gió, yêu cầu phải lắp kính thẳng đứng. Ngoài ra, chiều dài của cửa mái không được quá 8,4m và cần đặt lùi một bước so với cột đầu hồi nhà.
Bài viết liên quan: Mái nhà xưởng là gì? Kết cấu, phân loại và một số lưu ý
Khung chính (kèo, cột)
Khung chính của nhà xưởng, bao gồm các bộ phận như kèo và cột, là yếu tố quan trọng trong việc đảm bảo sự ổn định và chịu lực của toàn bộ công trình. Kèo là bộ phận kết cấu ngang, chịu tải trọng từ mái, và truyền tải trọng xuống cột. Cột, nằm dọc theo công trình, có nhiệm vụ chịu lực dọc và truyền tải trọng xuống nền móng. Tùy vào quy mô và yêu cầu kỹ thuật của nhà xưởng, khung chính có thể được thiết kế bằng nhiều loại vật liệu khác nhau như thép, bê tông cốt thép, hoặc kết hợp giữa các loại vật liệu này.
Sàn, nền nhà xưởng công nghiệp
Sàn và nền nhà xưởng công nghiệp cũng đóng vai trò quan trọng trong việc duy trì sự ổn định và hiệu quả vận hành của công trình. Đây là bộ phận tiếp nhận trực tiếp tải trọng từ các cấu kiện và thiết bị trong suốt quá trình sản xuất. Vì vậy, việc thiết kế nền và sàn cần phải đảm bảo các yếu tố như độ bền, độ ổn định và khả năng phân bố tải trọng đồng đều.
Tùy vào điều kiện địa chất và yêu cầu kỹ thuật, nền có thể được xây dựng bằng bê tông cốt thép hoặc các phương pháp khác, trong khi sàn cần có khả năng chống mài mòn và chịu lực tốt, đặc biệt tại các khu vực có tải trọng lớn.
Để đảm bảo nền nhà xưởng có độ bền và khả năng chịu tải tốt, thiết kế nền cần tuân thủ các yêu cầu nghiêm ngặt về kỹ thuật và vật liệu. Nếu nhà xưởng xây dựng trên nền đất yếu, phải thực hiện các biện pháp xử lý đất như gia cố nền hoặc sử dụng móng cọc để đảm bảo độ ổn định.
Nền nhà xưởng phải có lớp lót cứng với độ dày tối thiểu 0,1m, giúp tăng cường khả năng chịu lực và chống thấm. Các công trình nền bê tông cần phải có cốt phôi thép chống va đập, và khả năng chống ăn mòn do axit, kiềm hoặc hóa chất.
Ngoài ra, việc thiết kế hệ thống thoát nước hiệu quả là rất quan trọng để tránh tình trạng ứ đọng, bảo vệ kết cấu nền lâu dài. Nền cũng cần được chia thành các ô nhỏ với kích thước tối đa 0,6m, giữa các mạch có chèn bitum để giảm thiểu sự nứt vỡ.

Sàn nền cho nhà xưởng công nghiệp cần được thi công chắc chắn để đảm bảo khả năng chịu tải và độ bền vững cho kết cấu
Tường, vách ngăn
Tường và vách ngăn trong nhà xưởng công nghiệp phải đáp ứng các yêu cầu kỹ thuật cao để phân chia không gian hiệu quả và bảo vệ khu vực sản xuất khỏi các tác động bên ngoài. Tùy vào mục đích sử dụng, tường có thể được xây dựng từ các vật liệu như bê tông cốt thép, gạch hoặc các tấm panel cách nhiệt. Các tường ngoài cần có khả năng chống thấm, chống ăn mòn và chịu được các yếu tố tác động từ môi trường bên ngoài như mưa, gió, hoặc độ ẩm.
Với vách ngăn, yếu tố linh hoạt trong việc phân chia không gian là rất quan trọng. Vách ngăn cần phải đảm bảo khả năng chịu tải nhẹ và có thể tháo lắp hoặc điều chỉnh dễ dàng, phù hợp với thay đổi nhu cầu sản xuất. Các vật liệu sử dụng cho vách ngăn cũng cần phải có khả năng cách âm, cách nhiệt tốt, đặc biệt là trong các khu vực có yêu cầu bảo vệ an toàn lao động hoặc giảm thiểu tiếng ồn.

Nhà xưởng có không gian lớn cần phải được phân chia bằng các vách ngăn
Mái canopy và giếng trời
Mái canopy và giếng trời trong thiết kế nhà xưởng công nghiệp cần được tính toán kỹ lưỡng để đảm bảo sự hiệu quả và bền vững trong suốt quá trình sử dụng. Mái canopy, thường được lắp đặt ở các khu vực cửa ra vào hoặc khu vực ngoài trời, phải có độ dốc hợp lý và được làm từ vật liệu chịu được tác động của thời tiết như tôn, thép hoặc vật liệu composite. Độ dốc của mái cần được tính toán để đảm bảo khả năng thoát nước mưa hiệu quả, tránh hiện tượng đọng nước gây hư hỏng cho kết cấu.

Mái canopy còn giúp tăng tính thẩm mỹ cho toàn bộ nhà xưởng
Giếng trời là một giải pháp để tăng cường ánh sáng tự nhiên vào trong không gian sản xuất, giúp giảm chi phí điện năng cho chiếu sáng. Giếng trời cũng cần được thiết kế sao cho có thể kiểm soát ánh sáng vào ban ngày, không gây hiện tượng nắng nóng hay tạo ra độ chói. Vật liệu sử dụng cho giếng trời phải có khả năng cách nhiệt tốt và dễ dàng bảo trì, đảm bảo không gây cản trở cho hoạt động sản xuất.
Hệ giằng
Hệ giằng trong nhà xưởng công nghiệp có vai trò quan trọng trong việc tăng cường độ ổn định của công trình, đặc biệt là trong các cấu trúc có khung thép hoặc bê tông. Hệ giằng được thiết kế để ngăn ngừa sự biến dạng hoặc lệch lạc của kết cấu, giúp duy trì sự đồng nhất và bền vững của toàn bộ công trình. Hệ giằng có thể bao gồm các thanh thép, dây cáp hoặc các chi tiết kết cấu khác, được kết nối giữa các cột, dầm và các bộ phận khác của khung nhà xưởng, giúp phân phối đều tải trọng và giảm bớt các lực ngang từ gió, động đất hoặc các tác động bên ngoài.
Bu lông neo
Bu lông neo được sử dụng để kết nối các bộ phận của kết cấu nhà xưởng với nền móng, giúp tăng cường sự ổn định và chắc chắn của công trình. Chúng thường được làm từ thép chịu lực cao và được xử lý chống ăn mòn để tăng tuổi thọ. Khi thiết kế và lắp đặt bu lông neo, cần đảm bảo kích thước và vật liệu phù hợp với yêu cầu chịu tải trọng và tính linh hoạt của công trình. Đặc biệt, các bu lông phải được siết chặt đúng mức để tránh hiện tượng lỏng, gây ảnh hưởng đến độ ổn định của kết cấu.

Bu lông neo là một vật liệu quan trọng, giúp ổn định kết cấu của nhà xưởng
Một số chi tiết khác
Bên cạnh các yếu tố chính trong thiết kế kết cấu nhà xưởng như cột, dầm, mái và móng, còn có một số chi tiết quan trọng khác góp phần không nhỏ vào sự ổn định và hiệu quả của công trình. Một trong những yếu tố thiết yếu là hệ thống thông gió, giúp cải thiện chất lượng không khí và duy trì nhiệt độ ổn định trong nhà xưởng. Để đạt được điều này, các giải pháp như cửa thông gió, quạt hút, và giếng trời có thể được sử dụng để tối ưu hóa lưu lượng không khí, từ đó tạo ra môi trường làm việc thoải mái cho công nhân và nâng cao hiệu quả sản xuất.
Đặc điểm kết cấu nhà xưởng
Đặc điểm kết cấu nhà xưởng công nghiệp bao gồm các thành phần quan trọng như mái, tường bao, khung kết cấu, nền móng, và cửa ra vào.
Mái nhà xưởng: Thường được thiết kế với độ dốc phù hợp và sử dụng các vật liệu như tôn, ngói hoặc bê tông cốt thép để đảm bảo khả năng thoát nước mưa hiệu quả và bảo vệ công trình khỏi tác động của thời tiết.
Tường bao xung quanh nhà xưởng: không chỉ có chức năng bảo vệ bên ngoài mà còn phải có khả năng cách nhiệt, cách âm và chống thấm để duy trì môi trường làm việc lý tưởng. Khung nhà xưởng có thể được xây dựng từ thép hoặc bê tông cốt thép, tùy thuộc vào yêu cầu tải trọng và đặc thù sản xuất của từng ngành, đồng thời khung cần được thiết kế chắc chắn để đảm bảo sự ổn định và bền vững của công trình.
Nền móng của nhà xưởng: Phải được tính toán kỹ lưỡng để đảm bảo khả năng chịu tải trọng và độ ổn định trong quá trình sử dụng, phù hợp với điều kiện địa chất.
Cửa ra vào và cửa sổ trong nhà xưởng: Cần được thiết kế để đáp ứng nhiều yêu cầu, bao gồm chiếu sáng tự nhiên, thông gió hiệu quả và đảm bảo an toàn cho nhà xưởng từ những tác động của môi trường. Bên cạnh đó, chúng phải dễ dàng mở và đóng, phục vụ công tác vận hành và quản lý.
Khi thiết kế kết cấu cửa đi và cửa sổ cho nhà xưởng, cần chú ý đến các yêu cầu kỹ thuật sau:
- Độ cao cửa chính không vượt quá 2,4m tính từ mặt sàn và phải đảm bảo khả năng đóng mở dễ dàng.
- Đối với cửa sổ có độ cao lớn hơn 2,4m, cần lắp khung cố định để tăng cường khả năng chống bão. Trong một số trường hợp, có thể cần thêm cửa có kẹp giữ chắc chắn và được điều chỉnh bằng cơ khí.
- Ngoài những yêu cầu cơ bản về kích thước và cấu trúc, việc thiết kế cửa và cửa sổ còn cần phải bảo đảm các yếu tố khác như hệ thống đèn điện, hệ thống thông gió, và phòng chống cháy nổ.
- Bên cạnh đó, các hệ thống thoát nước trên mái cũng cần được thiết kế hợp lý để tránh tình trạng ứ đọng nước mưa.
- Đặc biệt, cần tính toán đường dây viễn thông như truyền hình cáp, Internet, và điện thoại để phục vụ cho nhu cầu công việc trong nhà xưởng.
Về hệ thống làm mát và thông gió: Thiết kế cửa sổ và cửa đi phải đảm bảo sự lưu thông không khí tốt, giúp giảm nhiệt độ và tạo điều kiện làm việc thoải mái cho công nhân. Các hệ thống quạt hút, cửa thông gió, hoặc giếng trời có thể được sử dụng để tối ưu hóa lưu lượng không khí trong nhà xưởng. Đặc biệt trong các nhà xưởng có hoạt động sản xuất mạnh mẽ, hệ thống thông gió phải đủ mạnh mẽ để loại bỏ khí nóng, khói hoặc các chất ô nhiễm trong không khí.
Đọc thêm: Giải pháp làm mát nhà xưởng phổ biến hiện nay

Làm mát nhà xưởng bằng hệ thống quạt gió là một biện pháp phổ biến
Về không gian đa năng: Nhà xưởng có thể linh hoạt thay đổi mục đích sử dụng trong quá trình vận hành, để phục vụ các yêu cầu sản xuất khác nhau. Điều này đòi hỏi thiết kế phải tối ưu hóa không gian, dễ dàng thay đổi cấu trúc mà không làm ảnh hưởng đến tính bền vững và an toàn của công trình.
Các hệ thống kỹ thuật cơ bản: Điện, nước và hệ thống chữa cháy cần được tích hợp vào thiết kế kết cấu nhà xưởng từ đầu. Hệ thống điện phải được bố trí sao cho đảm bảo nguồn cung cấp ổn định, an toàn cho các thiết bị sản xuất. Hệ thống nước phải cung cấp đủ nước cho các hoạt động sản xuất và vệ sinh trong suốt quá trình vận hành. Đồng thời, hệ thống chữa cháy phải được thiết kế theo tiêu chuẩn an toàn, với các thiết bị như vòi phun nước, hệ thống báo cháy và lối thoát hiểm rõ ràng, đảm bảo an toàn tuyệt đối cho công nhân và tài sản của nhà xưởng.
Các yêu cầu kỹ thuật cơ bản trong thiết kế cấu hình nhà công nghiệp
Kết cấu nhà xưởng có khả năng chịu lực
Các yêu cầu kỹ thuật cơ bản trong thiết kế cấu hình nhà công nghiệp bao gồm nhiều yếu tố quan trọng để đảm bảo sự bền vững và an toàn của công trình. Một trong những yếu tố then chốt là kết cấu nhà xưởng phải có khả năng chịu lực tốt, đảm bảo chịu đựng được các tải trọng tĩnh và động trong quá trình sản xuất. Điều này đòi hỏi việc tính toán chính xác các yếu tố như tải trọng từ máy móc, thiết bị, vật liệu lưu trữ, cũng như tải trọng do gió, động đất và các yếu tố môi trường tác động.
Kết cấu nhà xưởng cần được thiết kế sao cho khả năng chịu lực không chỉ dựa vào chất liệu sử dụng (như thép, bê tông cốt thép) mà còn phải tính đến độ bền, độ ổn định theo thời gian và khả năng phân bổ tải trọng đồng đều giữa các bộ phận như cột, dầm và móng. Việc tính toán và thiết kế chính xác kết cấu chịu lực còn giúp giảm thiểu nguy cơ biến dạng, nứt gãy trong suốt quá trình sử dụng của công trình, đảm bảo an toàn cho người lao động và bảo vệ tài sản của doanh nghiệp.
Chống chịu tốt với các yếu tố môi trường bên ngoài
Nhà xưởng cần đảm bảo khả năng đối phó với điều kiện khí hậu khắc nghiệt, như nắng nóng, mưa bão, gió mạnh và độ ẩm cao, mà không làm ảnh hưởng đến quá trình sản xuất hoặc gây hư hại cho công trình. Để đạt được điều này, việc sử dụng vật liệu xây dựng có tính năng chống ăn mòn, chống thấm và chống ẩm là rất quan trọng, đồng thời các bộ phận như mái, tường và cửa phải có khả năng chịu đựng tác động của thời tiết.
Cùng với đó, hệ thống thoát nước mưa phải được thiết kế hợp lý để bảo vệ công trình khỏi hiện tượng ngập úng. Các vật liệu lợp mái như tôn, ngói hay bê tông cốt thép cần có khả năng chịu gió mạnh, đảm bảo không bị hư hỏng dưới tác động của thời tiết xấu. Những giải pháp này không chỉ giúp kéo dài tuổi thọ của nhà xưởng mà còn giảm thiểu chi phí bảo trì và vận hành trong suốt quá trình sử dụng.
Đảm bảo an toàn PCCC
Đảm bảo an toàn phòng cháy chữa cháy (PCCC) là một yếu tố thiết yếu trong thiết kế nhà xưởng công nghiệp. Các hệ thống phòng cháy chữa cháy cần được tích hợp ngay từ giai đoạn đầu của thiết kế, đảm bảo đáp ứng các yêu cầu về an toàn cho công nhân và tài sản trong suốt quá trình vận hành. Để đạt được điều này, hệ thống báo cháy, chữa cháy phải được bố trí hợp lý và dễ dàng tiếp cận, bao gồm các thiết bị như bình cứu hỏa, vòi chữa cháy, hệ thống phun nước tự động (sprinkler) và hệ thống báo động cháy.
Ngoài ra, các lối thoát hiểm cần được thiết kế rộng rãi và thông thoáng, đảm bảo mọi người có thể dễ dàng rời khỏi khu vực nguy hiểm trong trường hợp khẩn cấp. Các cửa ra vào phải được lắp đặt với cơ chế dễ mở, không bị cản trở và có khả năng chống cháy trong thời gian nhất định. Bên cạnh đó, vật liệu xây dựng sử dụng trong nhà xưởng cũng cần phải có tính chống cháy, hạn chế tối đa nguy cơ cháy lan và bảo vệ cấu trúc công trình trong quá trình cháy.

An toàn PCCC là điều hết sức cần thiết khi xây dựng bất cứ công trình nào
Không gian linh hoạt, phù hợp với nhiều mục đích sử dụng
Không gian nhà xưởng cần được thiết kế linh hoạt, có thể thích ứng với nhiều mục đích sử dụng khác nhau trong suốt vòng đời của công trình. Điều này đòi hỏi cấu trúc của nhà xưởng phải dễ dàng thay đổi, mở rộng hoặc tái cấu trúc mà không làm ảnh hưởng đến sự ổn định của toàn bộ công trình.
Việc sử dụng các vật liệu nhẹ, kết cấu module và không gian mở giúp tối ưu hóa diện tích, tạo điều kiện cho việc bố trí lại máy móc, thiết bị, cũng như phân chia khu vực sản xuất sao cho phù hợp với nhu cầu thay đổi của từng giai đoạn sản xuất. Hơn nữa, thiết kế linh hoạt cũng giúp giảm chi phí đầu tư ban đầu và tăng cường khả năng sử dụng lâu dài của công trình.
Tuân thủ tiêu chuẩn kỹ thuật và xây dựng
Tuân thủ các tiêu chuẩn kỹ thuật và quy định xây dựng là yêu cầu không thể thiếu trong thiết kế và thi công nhà xưởng công nghiệp. Việc này đảm bảo công trình được xây dựng đúng quy chuẩn, an toàn và bền vững trong suốt quá trình sử dụng. Các tiêu chuẩn này bao gồm những quy định về kết cấu, vật liệu, hệ thống điện, nước, và các yếu tố an toàn lao động, phòng cháy chữa cháy.
Bên cạnh đó, việc tuân thủ các tiêu chuẩn xây dựng cũng giúp giảm thiểu rủi ro pháp lý và chi phí bảo trì, đồng thời nâng cao hiệu quả vận hành của nhà xưởng. Các cơ quan chức năng, như Bộ Xây dựng, các sở ngành địa phương, thường xuyên giám sát và yêu cầu các chủ đầu tư thực hiện các tiêu chuẩn này để đảm bảo chất lượng công trình và bảo vệ quyền lợi của người lao động.
Dễ dàng bảo trì và sửa chữa
Thiết kế nhà xưởng công nghiệp cần tính đến yếu tố dễ dàng bảo trì và sửa chữa để giảm thiểu thời gian gián đoạn sản xuất và chi phí vận hành trong dài hạn. Các chi tiết kết cấu, hệ thống kỹ thuật như điện, nước, thông gió hay thoát nước nên được bố trí khoa học, dễ tiếp cận để thuận tiện cho việc kiểm tra và thay thế khi cần. Ngoài ra, việc sử dụng các vật liệu bền, chống ăn mòn và có tuổi thọ cao cũng giúp hạn chế hư hỏng và kéo dài chu kỳ bảo trì.
Tiết kiệm chi phí thi công
Tiết kiệm chi phí thi công là mục tiêu quan trọng trong quá trình thiết kế nhà xưởng công nghiệp, đặc biệt với những dự án quy mô lớn. Để đạt được điều này, các giải pháp kết cấu cần được tối ưu hóa nhằm sử dụng hiệu quả vật liệu, rút ngắn thời gian thi công và giảm thiểu phát sinh trong quá trình xây dựng. Việc lựa chọn kết cấu thép tiền chế, hệ khung đơn giản và vật liệu có sẵn trên thị trường là những cách phổ biến giúp giảm chi phí mà vẫn đảm bảo chất lượng.
Thân thiện với môi trường và có tính thẩm mỹ
Một nhà xưởng công nghiệp hiện đại không chỉ đáp ứng yêu cầu về kỹ thuật mà còn cần thân thiện với môi trường và có tính thẩm mỹ. Điều này thể hiện qua việc sử dụng vật liệu xây dựng bền vững, hệ thống mái lấy sáng, thông gió tự nhiên hoặc sử dụng năng lượng tái tạo như pin mặt trời. Những yếu tố này không chỉ giúp giảm lượng khí thải và chi phí năng lượng, mà còn tạo ra không gian làm việc dễ chịu hơn cho người lao động. Bên cạnh đó, thiết kế hài hòa, kết cấu gọn gàng và cách phối hợp màu sắc hợp lý sẽ nâng cao hình ảnh chuyên nghiệp cho doanh nghiệp, góp phần xây dựng thương hiệu trong mắt đối tác và khách hàng.
Một số mẫu bản vẽ kết cấu nhà xưởng công nghiệp
Tùy theo mục đích sử dụng, diện tích và yêu cầu kỹ thuật, kết cấu nhà xưởng công nghiệp có thể được thiết kế theo nhiều dạng khác nhau. Một số mẫu bản vẽ phổ biến như:
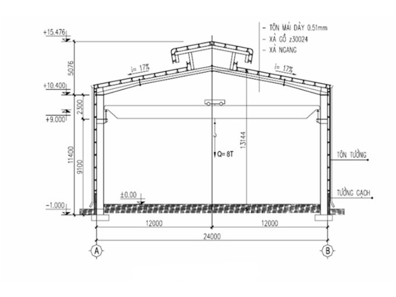
- Bản vẽ kết cấu nhà xưởng khung thép tiền chế: Thể hiện rõ các chi tiết như móng, cột, kèo, dầm, hệ giằng và mái lợp. Loại bản vẽ này thường được sử dụng cho các nhà xưởng có quy mô vừa và lớn, cần thi công nhanh và dễ mở rộng.

Bản vẽ nhà xưởng khung thép tiền chế
- Bản vẽ kết cấu nhà xưởng có tầng lửng hoặc văn phòng tích hợp: Tận dụng không gian chiều cao để bố trí khu làm việc, kỹ thuật. Thông thường nhà xưởng này có kết cấu sàn bê tông hoặc tấm sàn nhẹ trên hệ khung thép.
- Bản vẽ kết cấu nhà xưởng có hệ thống mái che, giếng trời và thông gió tự nhiên: Đáp ứng yêu cầu chiếu sáng và điều hòa không khí tự nhiên và giảm chi phí vận hành nhà xưởng nhờ tối ưu thông gió, ánh sáng.
- Bản vẽ kết cấu nhà xưởng có cầu trục: Dành cho ngành cơ khí, luyện kim, sản xuất nặng. Đồng thời, bản vẽ thể hiện rõ ray trục, móng chịu tải, chiều cao thông thủy lớn.

Bản vẽ nhà xưởng có cầu trục
KTG Industrial – Giải pháp nhà xưởng công nghiệp hiện đại
KTG Industrial là một trong những đơn vị tiên phong cung cấp giải pháp nhà xưởng công nghiệp cho thuê tại các khu công nghiệp trọng điểm như Bắc Ninh, Đồng Nai. Các nhà xưởng xây sẵn của KTG Industrial không chỉ có vị trí chiến lược mà còn được thiết kế với tải trọng sàn lớn, độ bền cao, đáp ứng yêu cầu vận hành máy móc nặng và dây chuyền sản xuất hiện đại.
Về hạ tầng kỹ thuật, hệ thống phòng cháy chữa cháy (PCCC) được KTG Industrial đầu tư bài bản và đồng bộ theo tiêu chuẩn, đảm bảo an toàn cho hoạt động sản xuất liên tục. Bên cạnh đó, yếu tố phát triển bền vững cũng được KTG Industrial chú trọng. Doanh nghiệp ứng dụng phương pháp làm mát bằng đối lưu tự nhiên kết hợp cùng hệ thống điện mặt trời áp mái, giúp tiết kiệm chi phí năng lượng và giảm phát thải ra môi trường. Giải pháp này không chỉ hỗ trợ hoạt động sản xuất xanh mà còn góp phần nâng cao hiệu suất sử dụng năng lượng cho toàn bộ khu nhà xưởng.
Với sự kết hợp giữa vị trí đắc địa, kết cấu tối ưu và định hướng phát triển bền vững, KTG Industrial đang là lựa chọn lý tưởng cho các doanh nghiệp trong và ngoài nước đang tìm kiếm giải pháp nhà xưởng hiện đại, an toàn và hiệu quả dài hạn.
Lời kết
Kết cấu nhà xưởng công nghiệp không chỉ đảm nhận chức năng chịu lực mà còn quyết định đến hiệu quả vận hành và tuổi thọ công trình. Khi được thiết kế đúng chuẩn, nhà xưởng sẽ dễ bảo trì, thích ứng tốt với điều kiện môi trường và đáp ứng linh hoạt nhu cầu sản xuất. Dù lựa chọn mô hình khung thép, bê tông hay kết hợp, doanh nghiệp vẫn cần tuân thủ các quy chuẩn kỹ thuật hiện hành để đảm bảo đầu tư an toàn, tiết kiệm và bền vững.